더엘라소프잠실 서울 송파구 방이동 상가 먹자골목 상권 잔여세대 특별 분양
안녕하세요. 이번에는 송파구 방이동 먹자골목 상권에 분양되는 ‘더 엘라소프 잠실’ 상가에 대해 소개해 드리겠습니다. 상가는 2·8·9호선 트리플 역세권과 롯데월드, 올림픽공원, 현대아산병원 등 다양한 시설이 인접한 최고의 입지에 자리하고 있습니다. 또한, 재건축 아파트의 입주와 함께 상권의 활성화가 기대되는 곳입니다. 서울 송파구 방이동 더엘라소프잠실 상가의 분양 정보와 매력을 알아보겠습니다.

‘더 엘라소프 잠실’ 상가의 분양 정보
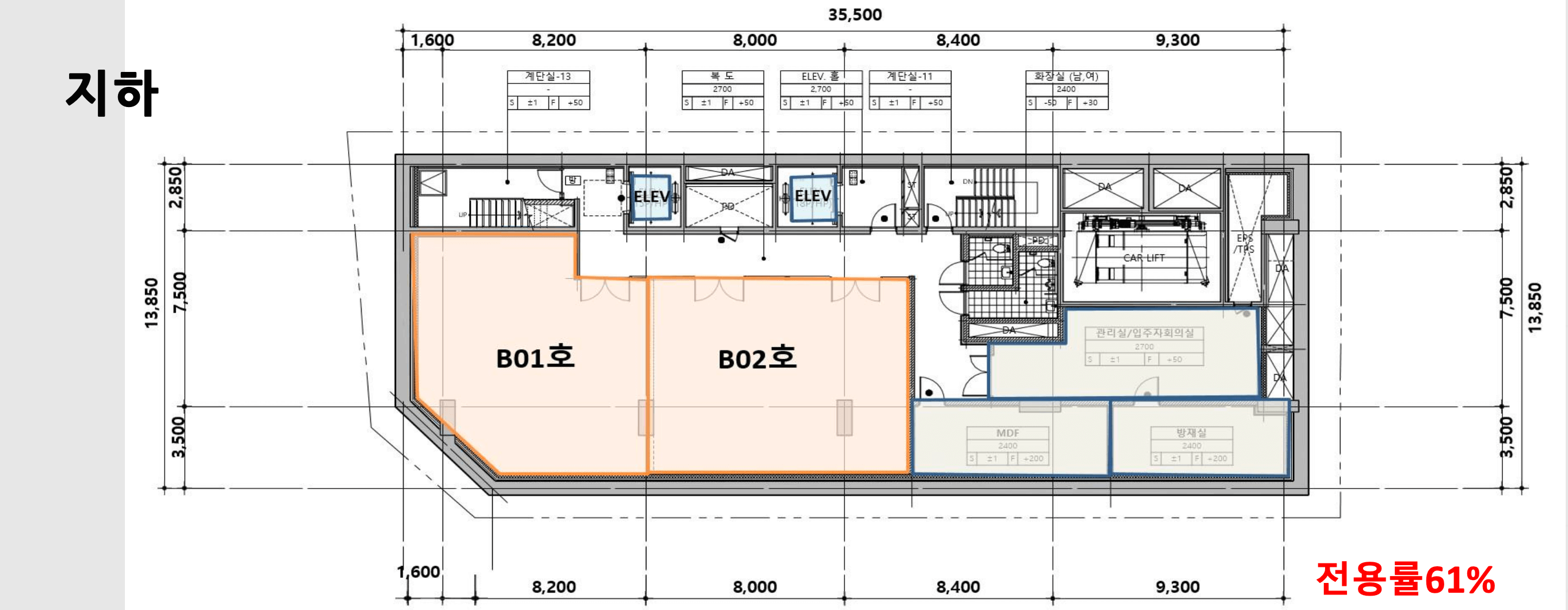
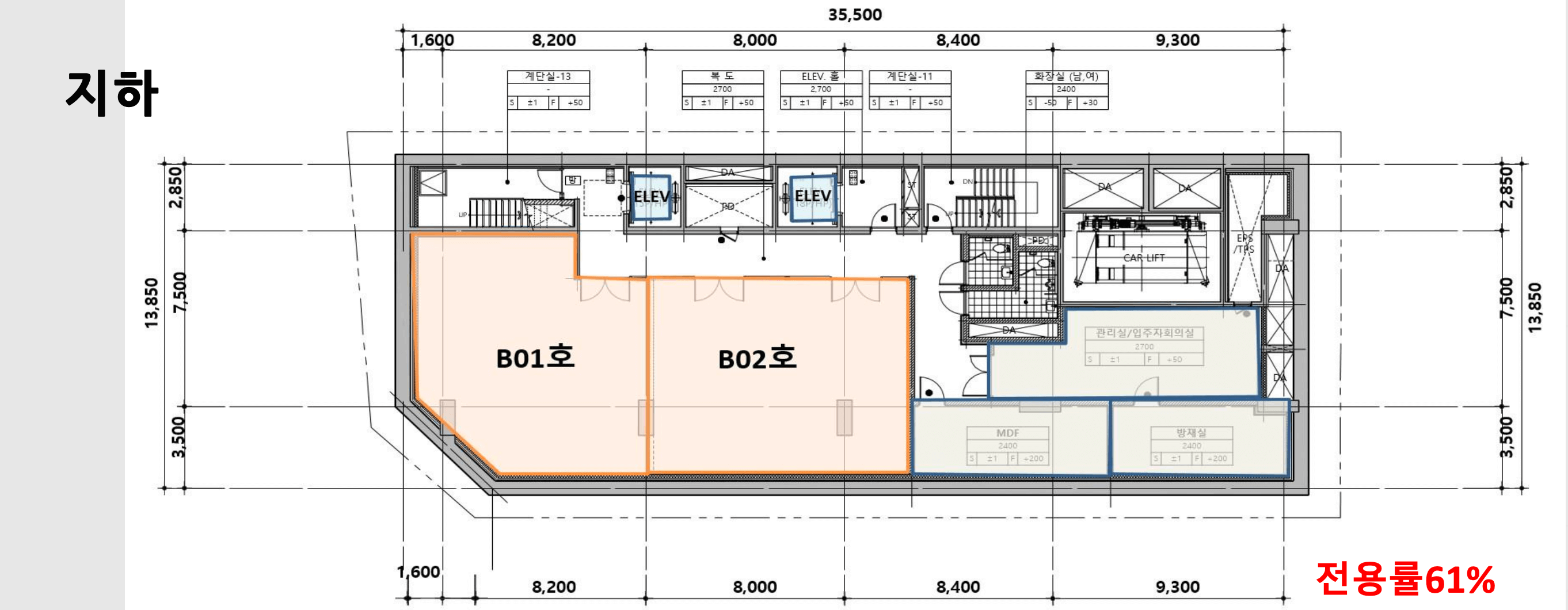
‘더 엘라소프 잠실’ 상가는 지하 1층에서 지상 4층에는 근린생활시설이, 지상 5층~16층은 오피스텔이 구성된 복합건물입니다. 상가는 총 26실로, 1층은 층고 5.2m, 2층은 층고 3.9m의 넓은 공간을 자랑합니다. 2층 전체가 병원으로 예정되어 있으며, 3층 일부는 병원과 4층에는 치과 등 다양한 메디컬 업종의 임차인들이 문의를 하고 있다고 합니다. 현재 분양 호실은 회사보유분 한 개 호실만 남아있는 상태입니다. 남아있는 호실은 현재 특별분양중으로 약국으로 임대가 맞춰져 있는 호실입니다. 자세한 특별분양가 및 혜택은 유선으로 문의주시면 자세하게 안내해 드리겠습니다.






‘더 엘라소프 잠실’ 상가의 매력
‘더 엘라소프 잠실’ 상가의 가장 큰 매력은 바로 접근성입니다. 상가는 2호선 잠실역, 8호선 몽촌토성역, 9호선 한성백제역이 모두 도보 10분 이내에 위치해 있습니다. 특히, 8호선 몽촌토성역 3번 출구에서는 100m 거리에 있어 매우 편리합니다. 또한, 방이동 먹자골목 메인도로 사거리 코너에 자리해 눈에 잘 띄는 곳이기도 합니다.
또한 상가는 유동인구가 풍부한 곳에 있습니다. 방이동 먹자골목은 송파구의 대표상권으로, 주7일 다른 지역보다는 괜찮게 돌아가는 분위기입니다. 롯데그룹의 다양한 시설이 주변에 자리해 있고, 삼성SDS, 한미약품 등 대기업 직장인 수요 33,000여명을 품고 있습니다. 더불어 현대아산병원, 송파구청, 올림픽공원, 석촌호수, 잠실상가, 방이동 상가 등으로 인해 유동인구가 풍부하다는 평가가 있습니다.

송파구 방이동 상가 더엘라로소프잠실은 재건축 아파트의 입주와 함께 상권의 활성화가 기대됩니다. 현재 상권 인근에는 진주, 미성, 크로바 등 약 4,600가구 규모의 재건축 사업이 진행되고 있습니다. ‘더 엘라소프 잠실’ 상가는 2023년 12월 준공되었으며, 향후 재건축 아파트의 입주 상권의 유입 인구와 매출을 더욱 늘려줄 것으로 보입니다.
마치며
이상으로 ‘더 엘라소프 잠실’ 상가에 대해 소개해 드렸습니다. 상가는 2·8·9호선 트리플 역세권과 다양한 시설이 인접한 최고의 입지에 자리하고 있습니다. 또한, 향후 재건축 아파트의 입주와 함께 상권의 활성화가 기대되는 곳입니다. 현재 분양 호실은 한 개 호실만 남아있는 상태이므로, 관심 있으신 분들은 서둘러 문의해 보시기 바랍니다. 감사합니다.
'부동산정보' 카테고리의 다른 글
| 운서역 오피스텔 영종SK뷰 (0) | 2024.02.27 |
|---|---|
| 테라로사카운티 고양, 고양시 타운하우스 특별 분양 (0) | 2024.02.25 |
| 위파크 제주, 호반건설 제주도 최대 규모 아파트 분양 5월 예정 (0) | 2024.02.23 |
| 포제스 한강 광진구 광장동 미계약세대 선착순 동호지정 분양 안내 (0) | 2024.02.21 |
| 제주 중부공원 제일풍경채 센트럴파크 아파트 분양 정보 (0) | 2024.02.21 |

