제주시 도평동 소형단독주택 주택수 미포함 2억대 세컨하우스
제주 소형 타운하우스 – 제주시 도평동 소형단독주택 분양 정보
제주는 아름다운 자연경관과 편리한 생활 인프라를 갖춘 지역으로, 많은 사람들이 이주를 고려하는 곳입니다. 최근 제주시 도평동 소형단독주택이 실거주자와 투자자들에게 큰 관심을 받고 있습니다. 오늘은 제주 소형 타운하우스의 매력과 특징을 자세히 살펴보겠습니다.

1. 제주시 도평동 소형단독주택의 주요 특징
제주시 도평동에 위치한 ‘아일랜드힐 5차 도평’ 소형 타운하우스는 실용적인 공간 활용과 편리한 생활권을 갖춘 주거 옵션입니다.
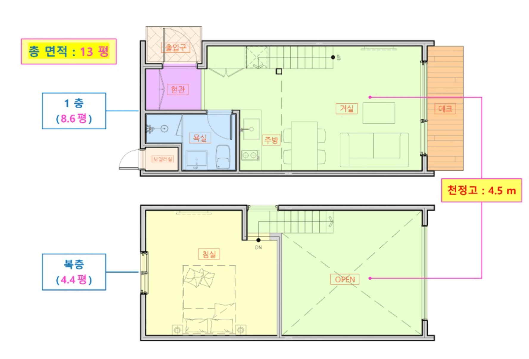
- 복층형 단독주택으로 구성
- 13평형(1층 8.6평 + 복층 4.4평)
- 주택 수 제외 혜택 (양도세 및 종합부동산세 중과 제외)
- 개별 잔디정원 & 1세대 1주차 공간 제공
- 한라산 조망 및 부분 바다 조망 가능
- 층간소음 문제 해결, 천장고 4.5m로 개방감 극대화
- 풀옵션 제공 (LG빌트인냉장고, 빌트인세탁기, 전자레인지, 2구 전기레인지, LG에어컨 등)
- 2025년 10월 입주 예정
이와 같은 특징을 바탕으로, 제주시 도평동 소형단독주택은 1~2인 가구 및 세컨하우스를 찾는 분들에게 최적의 선택이 될 것입니다.




2. 제주시 도평동 소형단독주택의 입지적 장점
부동산 선택 시 입지는 중요한 요소입니다. ‘아일랜드힐 5차 도평’은 신제주(노형동) 생활권 내에 위치하여, 제주 시내 주요 지역과 가까운 거리에 있습니다.
- 노형오거리(이마트 신제주점, 드림타워 복합리조트)까지 3.7km
- 제주국제공항까지 7.3km
- 주변에 다양한 편의시설(마트, 병원, 카페 등) 밀집
- 자연친화적 환경(한라산과 바다 조망 가능)
이러한 뛰어난 입지적 장점 덕분에 실거주는 물론 투자 목적으로도 적합합니다.




3. 소형 타운하우스의 장점
1) 자연 속 아늑한 생활
제주는 청정한 자연환경이 매력적인 지역입니다. 특히, 제주시 도평동 소형단독주택은 한라산과 바다가 조망되는 위치에 있어 쾌적한 환경에서 생활할 수 있습니다. 도심에서 벗어나 자연 속 힐링을 원하는 분들에게 완벽한 선택이 될 것입니다.
2) 합리적인 분양가
제주의 일반적인 단독주택이나 대형 타운하우스에 비해, 소형 타운하우스는 상대적으로 저렴한 가격에 분양됩니다. 2억대 초반의 분양가로 초기 부담이 적어 실거주뿐만 아니라 세컨드 하우스나 임대 수익을 위한 투자 목적으로도 적합합니다.
3) 효율적인 공간 활용
복층형 구조로 설계된 소형 타운하우스는 13평 규모로 실용성을 극대화하였습니다. 특히, 거실 천장고 4.5m로 개방감을 살리고, 복층을 활용해 공간 효율성을 높였습니다. 미니멀 라이프를 추구하는 현대인들에게 알맞은 주거 형태입니다.
4) 생활 인프라 및 교통 편리성
‘아일랜드힐 5차 도평’은 신제주 생활권에 위치해 있어 마트, 병원, 카페 등 다양한 편의시설과 가깝습니다. 또한, 제주공항과 노형오거리에 인접해 있어 교통 접근성이 뛰어나 실거주에 유리한 조건을 갖추고 있습니다.




4. 투자 가치 높은 제주시 도평동 소형단독주택
현재 제주 부동산 시장은 안정적인 성장세를 보이고 있으며, 소형 단독주택에 대한 수요가 지속적으로 증가하고 있습니다. ‘아일랜드힐 5차 도평’은 주택 수에서 제외되어 양도세 및 종합부동산세 중과 대상에서 벗어나므로 투자 가치가 높습니다.
또한, 제주 지역은 관광객 및 장기 체류 수요가 많아 단기 임대 수익을 올리기에도 좋은 조건을 갖추고 있습니다. 실거주는 물론 임대 목적으로도 매우 유망한 부동산 상품이라 할 수 있습니다.








5. 제주시 도평동 소형단독주택 – 분양 정보
- 분양가: 2억 3천만원
- 세대수: 8세대 (1세대 1주차 가능)
- 입주 예정: 2025년 10월
- 기본 옵션: LG빌트인냉장고, 세탁기, 전자레인지, 2구 전기레인지, LG에어컨 포함
- 샘플하우스 오픈예정일 : 2025년 6월
- 계약사항 : 계약금 20%, 중도금 40%, 잔금 40%
‘아일랜드힐 5차 도평’은 사전 예약제로 운영되며, 방문 상담을 원하시는 분들은 미리 문의해 주시기 바랍니다. 관심 고객으로 등록하시면 상세한 정보를 제공해 드리겠습니다.
6. 마치며 – 제주에서 특별한 삶을 시작하세요
제주는 자연과 조화를 이루며 쾌적한 생활을 즐길 수 있는 최적의 주거지입니다. 특히, 제주시 도평동 소형단독주택은 합리적인 가격, 우수한 입지, 자연 친화적인 환경을 모두 갖춘 매력적인 선택지입니다.
새로운 보금자리나 투자처를 찾고 계신다면, ‘아일랜드힐 5차 도평’에서 특별한 제주 라이프를 시작해보세요!
Blog - 제주도 타운하우스 전원주택 - 제주도집닷컴
제주도집닷컴ㅣ☎ 1600-8302ㅣ제주도 타운하우스 | 제주도 전원주택 | 제주도 단독주택 | 제주도 주택 | 제주도 세컨하우스 | 제주도 집은 제주도집닷컴과 함께!!
jejudo-house.com

